Die Zimmer
Zuhause in unserer Demenz-WG
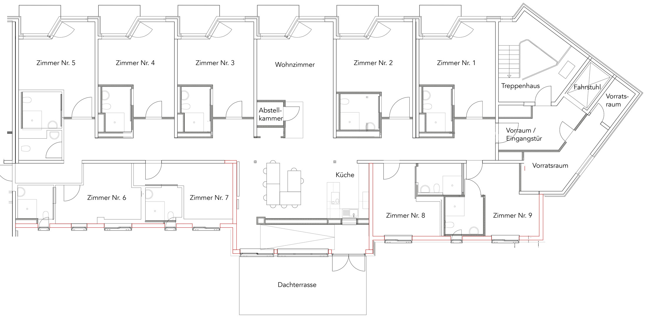
Unsere barrierefreie Demenz-WG im Penthouse bietet Platz für neun Bewohner*innen. Die Zimmer sind zwischen ca. 20 bis ca. 30 Quadratmeter groß und verfügen alle über ein privates Bad mit bodengleicher Dusche und Toilette. Sie können nach persönlichem Geschmack eingerichtet, gestrichen und dekoriert werden, sodass ein echtes Zuhause entsteht.
Die Wohneinheit umfasst fast 400 Quadratmeter und bietet mit der offenen Wohnküche und dem anschliessenden großzügigen Wohnzimmer viel Raum für ein gemeinschaftliches Leben.
Unser Pflegeteam sorgt täglich für ein frisches und gesundes Mittagessen, das gemeinsam zubereitet wird. Bewohner*innen können sich nach ihren Möglichkeiten an den Vorbereitungen beteiligen und so Teil des gemeinsamen Alltags sein.
Das Abendessen gestalten wir meist unkompliziert: Verschiedene Brotsorten, Aufschnitte und Aufstriche bieten für jeden Geschmack etwas. Selbstverständlich berücksichtigen wir dabei individuelle Gewohnheiten, Rituale, Allergien und Unverträglichkeiten, sodass sich jede*r Bewohner*in rundum wohlfühlen kann.
Eines unserer gemütlichen und individuell eingerichteten Bewohnerzimmer.

Wir haben zur Zeit EINEN freien Platz anzubieten.
Bei Interesse wenden Sie sich gern an
Auf dem Grundriss sehen Sie die gesamte Raumaufteilung unserer Demenz-WG. Neben den privaten Zimmern mit eigenem Bad gibt es den großzügigen Gemeinschaftsbereich der offenen Wohnküche mit dem anschliessenden Wohnzimmer und der geräumigen Dachterrasse. Der Plan bietet einen Überblick über die Struktur und den wohnlichen Charakter unserer Gemeinschaft.

Beispiel-Grundrisse großes & kleines Zimmer


Aufteilung der Räume
Die vier Zimmer auf der Ostseite des Hauses bieten einen idyllischen Blick auf den grünen Innenhof der Köster-Stiftung. Mit etwa 20 m2 sind sie etwas kompakter als die fünf großzügigeren Zimmer auf der Westseite, die nicht nur über einen Balkon verfügen, sondern auch mit einem weiten Ausblick über die Stadt beeindrucken.
